Vente – Location

Bureau à louer à DIFFERDANGE

250
Caution € 250
  • Réf.   C6TSK  

Description détaillée

Location de bureaux - en commun
à Differdange pour la domiciliation de votre société.
Vous cherchez un espace pour développer votre activité ? Profitez de ce bureau situé dans une maison à Differdange, idéal pour :
Domiciliation
• Création de société
• Freelances
• Start-ups
• Petites entreprises commerciales
Conditions flexibles : bail de courte durée possible, avec seulement 1 mois de préavis en cas de départ.
Services inclus :
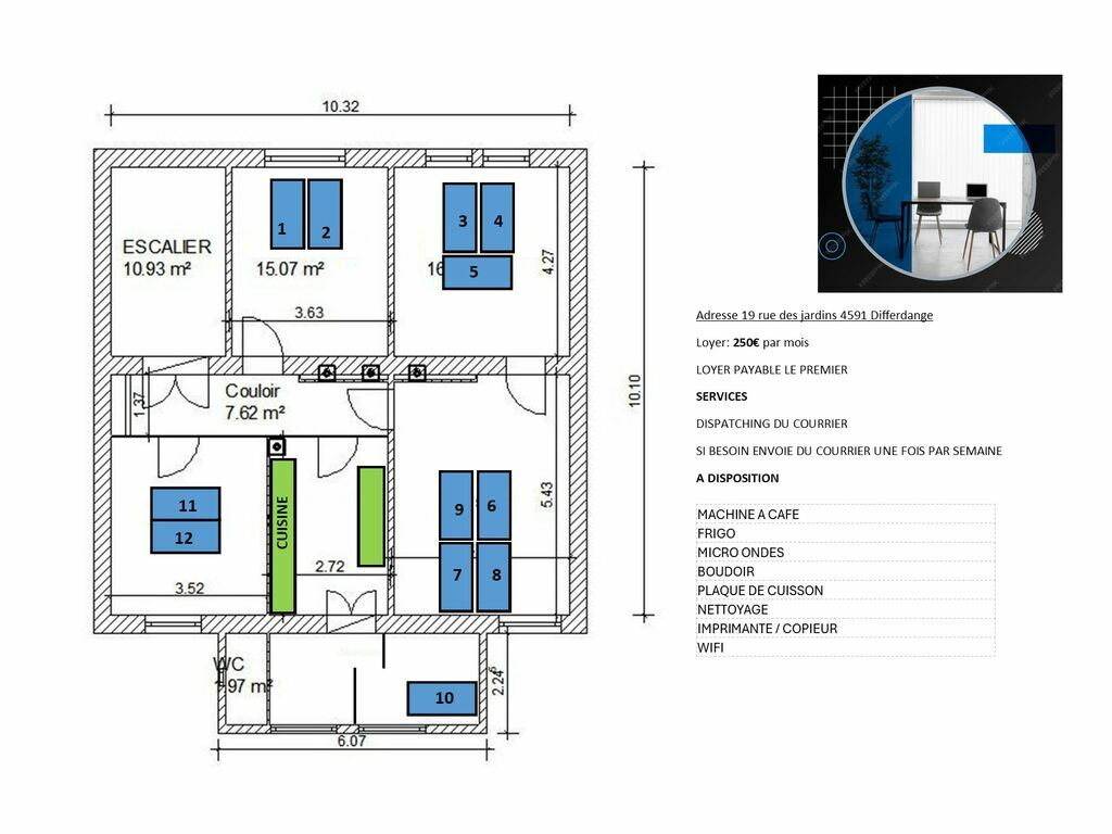
• Charges comprises (électricité, chauffage, eau) pour une gestion simplifiée
• Réexpédition de votre courrier 1x/semaine si vous n’êtes pas sur place
Modalités de location :
• Loyer : 250 €/mois
• Caution : 1 mois de loyer
Pour plus d’informations, n’hésitez pas à nous contacter.

Map

Caractéristiques

Contacter l'annonceur

  • 19 Rue des Jardins
    L-4591 Differdange
  • Tél.: +352 24 55 87 03
    +352 661 223 941
Powered by IMMOTOP.LU – Annonces immobilières
Copyright © G.S.Arche Sàrl 2017 - 2026 | Tous droits réservés
Mentions légales
Politique de confidentialité